2-комнатная квартира Терепец
Обзор№ - 20259
| Стоимость | 4 600 000 |
|---|---|
| Доля в квартире | Нет |
| Комнат в квартире | 2 |
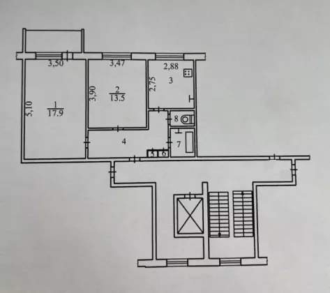
| Площадь, кв.м. | 51.7 |
| Жилая площадь | 31.4 |
| Площадь кухни, кв.м. | 7.9 |
| Этаж | 3 |
| Этажность | 9 |
| Материал стен | Панельный |
Адрес
| Населенный пункт | городской округ Калуга |
|---|---|
| Улица | бульвар Энтузиастов |
2-комнатная квартира Терепец
Продаётся 2-комнатная квартира Терепец б-р Энтузиастов3/9-этажного дома, 51,7/31,4/7,9. Квартира в жилом состоянии, новые окна ПВХ Rehau, комнаты изолированные, санузел раздельный. Кухня, спальня и зал - выход на лоджию. На этаже кладовая на 2 квартиры. Требуется ремонт. Рядом детский сад, школа, магазины и остановки. Объект 20259.

































